12 Fotos und Anhänge ansehen
Woide Immobilien GmbH
Bahnhofstraße 18, 37688 Beverungen
Woide Immobilien GmbH

Immobilien mit Mehrwert!

Teilen

Hausansicht

Hausansicht Gartenseite

Eingangsbereich Treppenhaus EG

Eingangsbereich Treppenhaus OG

Eingangsbereich

Wohnzimmer

Wohnzimmer

Küche

Schlafzimmer

Badezimmer

Abstellraum

OG links

Eckdaten

  • Art Etagenwohnung
  • Lage Uhlandstraße 17
    32051 Herford
  • Kaufpreis 259.000,00
  • Wohnfläche ca. 63
  • Zimmer 2
  • Baujahr 2025
  • Etagenzahl 3
  • Etage 2
  • Alt-/Neubau Neubau
  • Denkmalschutzobjekt nein
  • Einbauküche ja
  • Gäste-WC nein
  • Anzahl Balkone 1
  • Stellplatztyp Aussenstellplatz
  • Stellplatzanzahl 1
  • Stellplatzkaufpreis 10.000,00
  • Vermietet nein
  • Bezugstermin 01.12.2025
  • Ausstattung des Bades Dusche Fenster
  • Zustand Erstbezug
  • Immobilien-ID 127130914

Immobilie

Zum Verkauf steht eine Eigentumswohnung in einem komplett neu errichteten Mehrfamilienhaus in Herford.

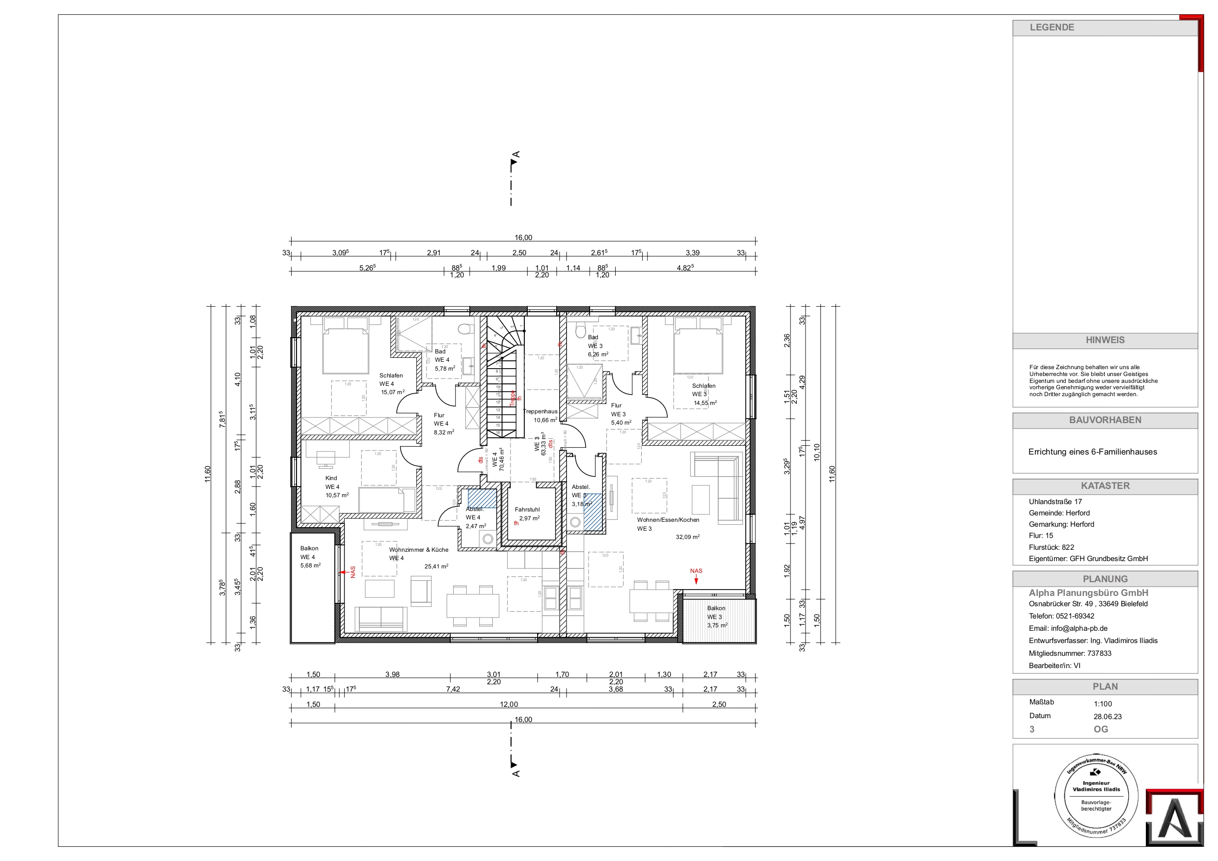
Die Wohnung befindet sich im 1. Obergeschoss und bietet eine Wohnfläche von ca. 63 m².
Sie besteht aus einem Wohnzimmer mit Küchenbereich und Einbauküche, einem Schlafzimmer, einem Bad mit Dusche, einem Abstellraum sowie einem Balkon.

Die Wohnung ist bezugsfertig: Böden sind bereits verlegt und die Wände gestrichen, Sie müssen nur noch Ihre Möbel einbringen.
Das Mehrfamilienhaus verfügt über einen Personenaufzug, und jede Wohneinheit hat die Möglichkeit, einen eigenen Stellplatz für einen zusätzlichen Kaufpreis von 10.000 € zu erwerben.

Beheizt wird das Gebäude über eine moderne Luft-Wärmepumpen-Heizung.
Die Eigentumswohnung eignet sich sowohl ideal für Selbstnutzer als auch als Anlageobjekt zur Fremdnutzung.

Im Objekt befindet sich zudem eine weitere Wohnung im Erdgeschoss mit demselben Schnitt.
Bei dieser Einheit sind sämtliche Ausstattungsentscheidungen, vom Fußboden bis zur Küche, noch frei wählbar.
Sollte Interesse an einer Erdgeschosswohnung bestehen, können Sie sich hierzu gerne melden.

Für weitere Informationen oder bei Interesse an der Wohnung freuen wir uns auf Ihre Anfrage.

****
Wenn Sie eine Besichtigung anfragen möchten, geben Sie bitte Ihre Telefonnummer und die bevorzugten Zeiten an, zu denen Sie am besten verfügbar sind. Wir werden unser Möglichstes tun, um diese Wünsche zu berücksichtigen und die Besichtigung zu arrangieren.

**
Haftungsausschluss:
Alle Angaben aus diesem Exposé stammen vom Verkäufer. Der Immobilienmakler hat insbesondere die Wohnflächenangabe des Verkäufers nicht überprüft und keine eigene Wohnflächenberechnung erstellt.

Lage

Das Grundstück befindet sich in ruhiger Innenstadtlage. Von hieraus lassen sich die Geschäfte des täglichen Bedarfs fußläufig erreichen.
Eine hervorragende Anbindung an den ÖPNV ist unteranderem gegeben durch die unmittelbare Nähe zum Bahnhof Herford, welcher zu Fuß nur 800 m entfernt ist.

Die Stadt Herford im Bundesland Nordrhein- Westfalen misst zur Zeit ca. 68.000 Einwohner, wobei ca. 52.000 Einwohner auf die Kernstadt entfallen.
Herford gehört zum ostwestfälischen Verdichtungsraum, der sich von Gütersloh über Bielefeld und Herford bis Minden erstreckt. Die Stadt liegt im Ravensberger Hügelland zwischen Teutoburger Wald und Wiehengebirge, 15 Kilometer nordöstlich von Bielefeld.
Über die Bundesautobahn A2 und die Bahnstrecke Hamm–Minden sind Dortmund und Hannover erreichbar.

Ausstattung

-Wohnfläche: ca. 63 m²
-Anzahl der Zimmer: 2
-Badezimmer: 1 mit Dusche
-Balkon
-Einbauküche
-Stellplatz zusätzlich erwerbbar- Kaufpreis: 10.000,00€
-Personenaufzug
-Luft-Wärmepumpen Heizung

Möbliert Aufzug Vermietet Gäste-WC Balkon vorhanden Einbauküche Rollladen vorhanden

Grundrisse

Wie können wir Ihnen behilflich sein?

Herzlichen Dank für Ihre Anfrage.

Wir werden diese so schnell wie möglich bearbeiten.

Wie können wir Ihnen behilflich sein?
* Pflichtfeld